Uitgelichte woning foto
Meer foto's

Lijsterbeslaan 93

Rotterdam Verkocht
Woning foto 0
Woning foto 1
Meer foto's
Woning foto 2
Woning foto
Meer foto's
Plattegronden
Bezichtiging aanvragen
Brochure downloaden
Locatie
Video

Omschrijving.

Authentieke jaren ’30 gezinswoning, gelegen in een rustige en gemoedelijke straat in het gezellige en groene Schiebroek. Dankzij de strakke moderne open keuken en de grote raampartijen is de woonverdieping verrassend licht. Het plafond met originele gestucte ornamenten en de klassieke eikenhouten vloer dragen bij aan de warme sfeer in huis. Net als de openslaande deuren, die toegang geven tot de heerlijke ruime achtertuin, voorzien van een grote houten berging en achterom. Omdat de tuin op hetzelfde niveau ligt als de woonverdieping, is het echt een verlengstuk van de woonkamer. Van het vroege voorjaar tot ver in de nazomer is dit de perfecte plek om lekker te relaxen of te borrelen met vrienden. En zo heeft dit huis tal van sterke punten. Zoals vijf fijne slaapkamers, twee nette badkamers en een vliering met een zee aan bergruimte.

De woning ligt op een steenworp van de Peppelweg, met zijn vele winkels, horeca en wekelijkse markt. Op de fiets ben je zo bij de boetiekjes en eettentjes van de Bergse Dorpsstraat. In de directe omgeving zijn verder verschillende basis- en middelbare scholen en kinderopvanginstellingen. Ook vlakbij liggen voetvalverenigingen VOC en Neptunus, hockeyclub HCR en tennisclub Schiebroek. Wie van wandelen houdt, kan terecht in het Schiebroeksepark, langs de Bergse Plassen of in het Bergse Bos. En kleine kinderen kunnen heerlijk spelen in Plaswijckpark, geitjes voeren op kinderboerderij De Wilgenhof of ravotten bij stadsboerderij Natuurtalent. Wil je uitgebreid shoppen, een avondje naar het theater of een filmpje pikken, dan fiets je in een kwartier naar hartje Rotterdam. Je kunt natuurlijk ook de bus, tram of metro (Randstadrail) pakken, die allemaal stoppen in de buurt. En met de auto ben je zo op de Ring Rotterdam, de A13, de A16 en de A20.

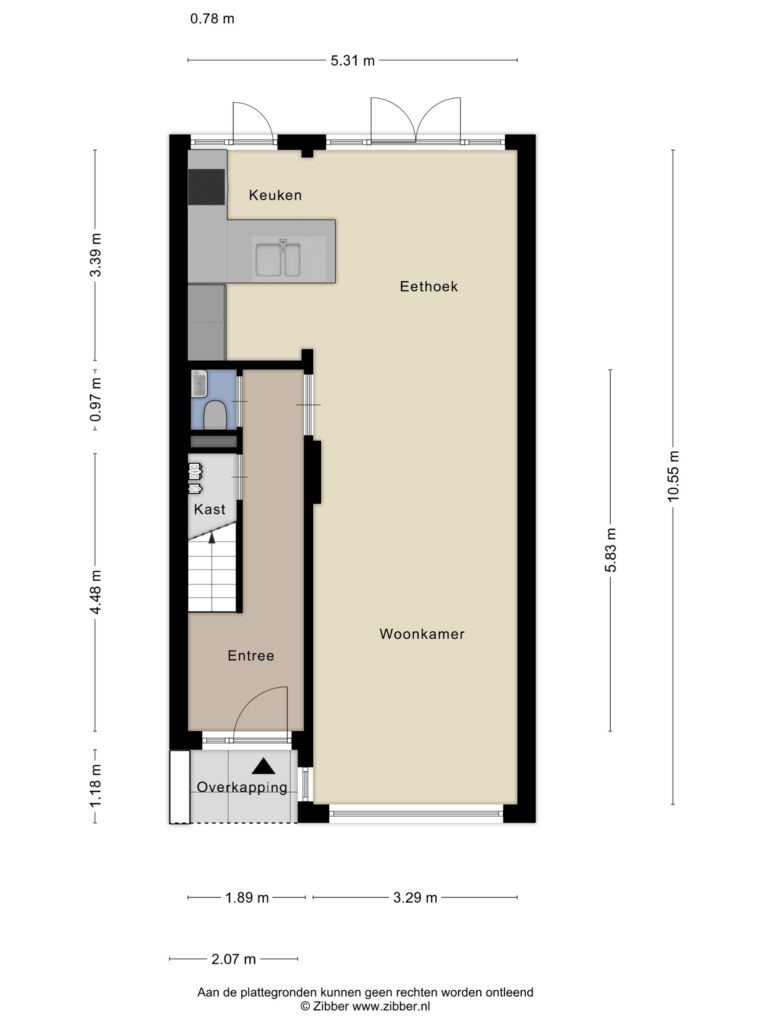
Indeling:

Begane grond: Entree, hal met trapopgang, trapkast/meterkast, toilet met fonteintje, royale woon-/eetkamer met open woonkeuken, voorzien van alle wenselijke inbouwapparatuur en opvallend veel werkblad, de zitkamer bevindt zich aan de voorzijde en de eetkamer aan de achterzijde met openslaande deuren naar achtertuin.

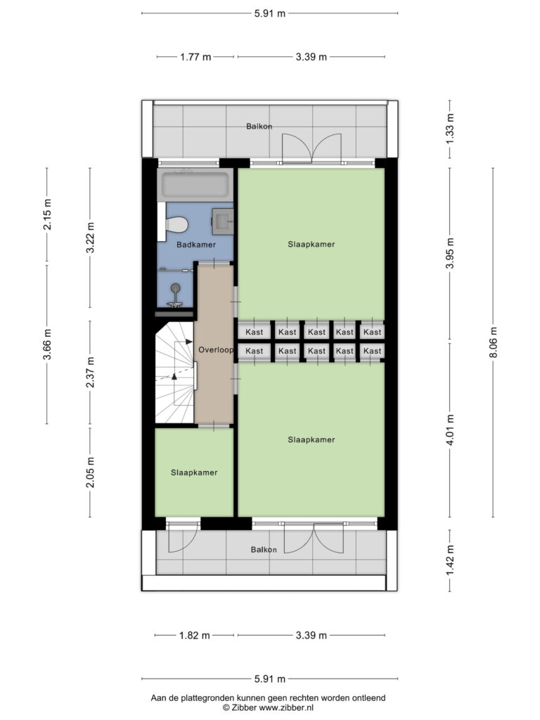
1e verdieping: Overloop, zijkamer voorzijde met toegang tot het pandbrede balkon, ruime slaapkamer voorzijde met openslaande deuren naar het pandbrede balkon en v.v. een vaste kastenwand, ruime slaapkamer achter met openslaande deuren naar het eveneens pandbrede balkon en een vaste kastenwand, badkamer met ligbad, douche, toilet en wastafelmeubel.

2e verdieping: Overloop met diepe vaste kast / berging, slaapkamer voorzijde met dakkapel, slaapkamer achterzijde met dakkapel, badkamer met toilet, douche en wastafel. Vanaf de overloop is de vliering bereikbaar.

Achtertuin: gelegen op de ochtend- en middagzon, ca. 10.00x5.60, voorzien van riante houten schuur van ca. 10m2 en een achterom.

Voortuin: gelegen op de middag- en avondzon, ca. 3.66x560.

Bijzonderheden;
- bouwjaar 1931
- gelegen op 137 m² eigen grond
- gebruiksoppervlak wonen ca. 128 m² (conform NEN2580 / BBMI)
- gebruiksoppervlak gebouwgebonden buitenruimte ca. 15 m² (conform NEN2580 / BBMI)
- gebruiksoppervlak externe bergruimte ca. 10 m² (conform NEN2580 / BBMI)
- Energielabel C
- grotendeels v.v. houten kozijnen, deels v.v. kunststof kozijnen
- grotendeels dubbel glas, deels enkel glas
- centrale verwarming en warm water middels c.v.-combiketel uit 2012
- voortuin op het zuidwesten
- diepe achtertuin op het noordoosten met grote houten berging en achterom

Oplevering in overleg.

Voor aanvullende informatie over deze woning kunt u de eigen website (adres+huisnummer) bezoeken.

J.J. van Oosten Makelaardij is de NVM-makelaar van de verkoper. Wij adviseren u uw eigen NVM-makelaar in te schakelen om uw belangen te behartigen bij de aankoop van dit object.

Aan deze aanbiedingstekst kunnen geen rechten worden ontleend.

De gebruiksoppervlakte van de woning is opgemeten conform de branchebrede meetinstructie (BBMI). De BBMI is gebaseerd op de NEN2580. De BBMI is bedoeld om een meer eenduidige manier van meten toe te passen voor het geven van een indicatie van de gebruiksoppervlakte. De meetinstructie sluit verschillen in meetuitkomsten niet volledig uit, door bijvoorbeeld interpretatieverschillen, afrondingen of beperkingen bij het uitvoeren van de meting.

Kenmerken.

Bouwjaar
1931
Aantal kamers
6
Aantal slaapkamers
5
Woonoppervlakte
128 m2
Perceeloppervlakte
137 m2
Inhoud
452 m3
Aantal badkamers
2
Energielabel
C
Isolatie
Dakisolatie, Gedeeltelijk dubbelglas
Externe bergruimte
10 m2
Vraagprijs
€ 750.000,- k.k.
Aanvaarding
In overleg
Status
Verkocht
Soort woning
Eengezinswoning
Type woning
Tussenwoning
Soort object
Woonhuis
Bouwvorm
Bestaande bouw
Ligging
Aan rustige weg, In woonwijk, In bosrijke omgeving
Daktype
Zadeldak
Warm water
CV ketel
Verwarming
CV ketel
Type ketel
Nefit Proline CW5
Tuin
Achtertuin, Voortuin
Schuur / Berging
Vrijstaand hout
Parkeerfaciliteiten
Openbaar parkeren
Permanente bewoning
Ja
Onderhoud binnen
Goed
Onderhoud buiten
Goed
Huidig gebruik
Woonruimte
Huidge bestemming
Woonruimte
Voorzieningen
Mechanische ventilatie, TV kabel, Buitenzonwering

Locatie.

Deel dit huis.

Gerelateerd aanbod.

Woning afbeelding
Bekijk huis
Nieuw

Ungerplein 9B

Rotterdam
€ 650.000,- k.k.
Woning afbeelding
Bekijk huis

Lumeystraat 26A

Rotterdam
€ 650.000,- k.k.