Omschrijving.
Een bijzonder charmant dubbel benedenhuis, gelegen op de begane grond en eerste verdieping en voorzien van een heerlijke ruime en zonnige achtertuin. De hagelnieuwe veranda die afgewerkt is met luxueuze materialen is letterlijk het verlengstuk van de woonkamer op droge en mooie dagen. Intern bruist dit huis van de karakteristieke en sfeervolle elementen daterend van meer dan 100 jaar geleden. Op de begane grond bevinden zich een mooie halfopen keuken met een leuke en grote doorkijk, waardoor de keuken zeer efficiënt is met veel kastruimte en werkblad, vanuit de gezellige eetkamer aan de tuinzijde kijk je zo de keuken in en loop je via de openslaande deuren de veranda op en de tuin in.
Dit geweldige dubbele benedenhuis biedt je ruimte, sfeer, karakter, comfort en een heerlijk diepe tuin met verrassend veel rust en privacy. Door de diepte van de tuin is er vrijwel de gehele dag een plekje in de zon te vinden. Overige sterke punten zijn de ruime slaapkamers, de walk-in-closet en de aanwezigheid van een energielabel B. Het gehele huis is v.v. HR++ glas in houten kozijnen die grotendeels in 2024 nog geschilderd zijn. De kozijnen die nog in het voorjaar van 2026 geschilderd worden betreffen nieuwe (2025) houten kozijnen die in de grondverf staan. Ideaal is de vele bergruimte in de vaste kasten, de kelder en de ruime schuur.
De locatie in het populaire Liskwartier is uitstekend, gelegen aan wellicht het mooiste gedeelte van de lommerrijke en statige Bergselaan, waar je omringd wordt door alles wat het leven prettig maakt: Voorzieningen op loopafstand; gezellige winkels, leuke horeca zoals Café Ollie, foodhall Station Bergweg en Café Pompette en Osteria Liz, basisscholen, kinderdagverblijven en zelfs een openbaar openluchtzwembad. Goede bereikbaarheid door uitstekende verbindingen met het stadscentrum, tram, metro, Randstad Rail, Centraal Station en Station Noord. Ook de uitvalswegen (A13, A16, A20) zijn eenvoudig bereikbaar. Ook dicht bij de prachtige natuur van het Kralingse Bos, de Bergse Plassen en het Vroesenpark. Het huis ligt vanaf ca. 2026 nog geen 200 meter van een opgang naar het unieke stadpark boven op het voormalige spoorviaduct Hofbogen. Via het Hofbogenpark loop je zo over het langste dakpark van Nederland, door het groen, naar het centrum van de stad.
Bovendien staat dit deel van de Bergselaan bekend om het fijne nabuurschap, waar buren prettig met elkaar omgaan en je elkaar ook goed leert kennen aan de hand van leuke activiteiten zoals de jaarlijkse kerstboom borrel en de viering van Koningsdag. De brede stoep aan de voorzijde met vele bankjes voor de deur biedt ook de uitgelezen mogelijkheid om je naaste buren te ontmoeten voor de deur.
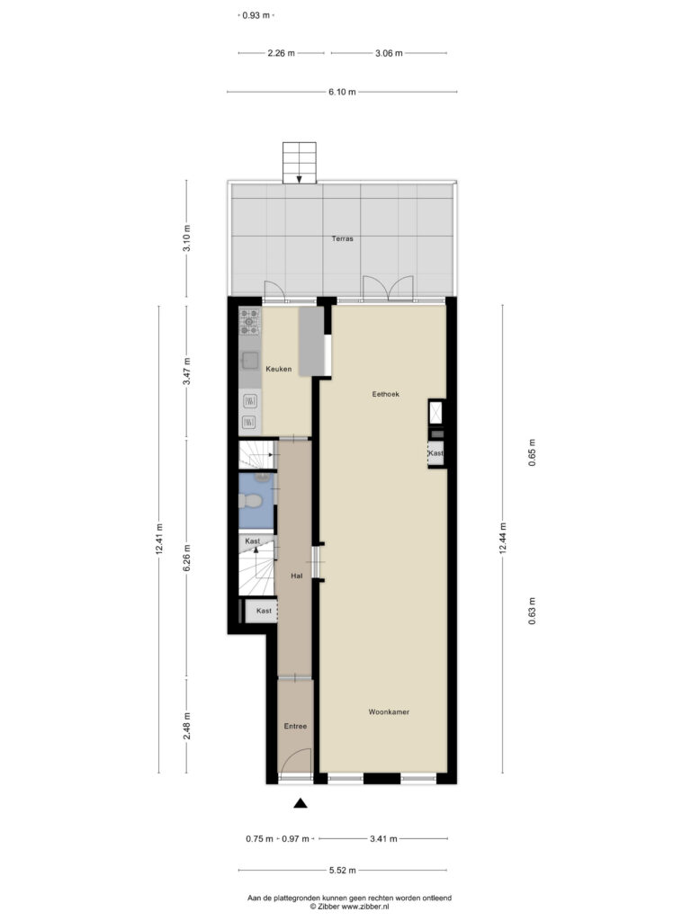
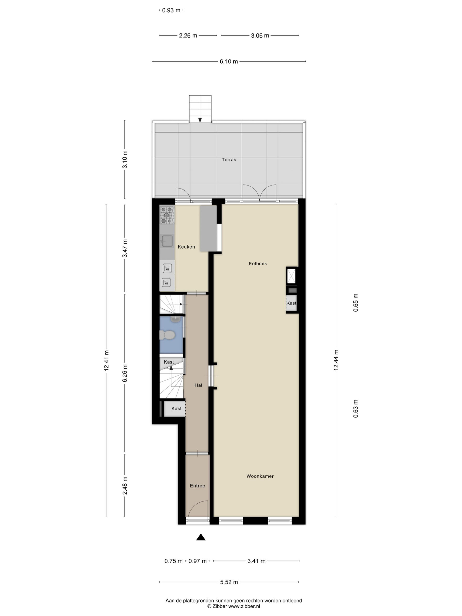
Indeling:
Begane grond:
Entree, vestibule, hal met vaste kast, toiletruimte v.v. wc en fonteintje, toegang tot de kelder, halfopen keuken aan de tuinzijde voorzien een keukenblok aan weerszijden voorzien van alle wenselijke apparatuur, vanuit de hal is er toegang tot de ruime living van ca. 42m2 en bestaande uit de zitkamer aan de voorzijde met prachtige glas-in-lood-ramen en de eetkamer aan de achterzijde v.v. schouw met open haard, een leuke doorkijk naar de keuken en openslaande deuren naar de nagenoeg nieuwe veranda. In de hal bevindt zich een absolute eyecatcher, een bijzonder charmante trap met een bordes naar de eerste verdieping.
Eerste verdieping:
Overloop, toiletruimte, hoofdslaapkamer achterzijde en suite walk-in-closet, royale 2e slaapkamer gelegen aan de voorzijde, zijkamer aan de voorzijde, moderne badkamer aan de achterzijde met ligbad, separate douche en dubbele wastafel.
Achtertuin:
De achtertuin is ca. 15 meter diep en ca. 6 meter breed en gelegen op het zuidoosten. Door de gunstige zonligging en de diepte van de tuin is er vrijwel de gehele dag een plekje in de zon te vinden. Achterin de tuin staat een houten schuur (ca. 3 x 2,5m2) met veel bergruimte.
Bijzonderheden;
- bouwjaar ca. 1913
- gelegen op eigen grond
- energielabel B
- gebruiksoppervlakte wonen ca. 129 m² (conform BBMI / NEN 2580)
- overige inpandige ruimte ca. 7 m² (conform BBMI / NEN 2580)
- gebouw gebonden buitenruimte ca. 18 m² (conform BBMI / NEN2580)
- externe bergruimte ca. 8 m² (conform BBMI / NEN2580)
- volledig voorzien van houten kozijnen met HR++ glas
- buitenschilderwerk grotendeels uitgevoerd in 2024
- centrale verwarming en warm water middels c.v.-ketel (HR) uit 2017
- de VVE is actief, bijdrage thans € 150,- per maand
- betaald parkeren en bewoners kunnen een parkeervergunning aanvragen
- de Bergselaan wordt een 30 km/u zone (dat besluit is al genomen), waardoor het een nog rustigere straat wordt
Oplevering in overleg.
Voor aanvullende informatie over deze woning kunt u de eigen website (adres+huisnummer) bezoeken.
J.J. van Oosten Makelaardij is de NVM-makelaar van de verkoper. Wij adviseren u uw eigen NVM-makelaar in te schakelen om uw belangen te behartigen bij de aankoop van dit object.
Aan deze aanbiedingstekst kunnen geen rechten worden ontleend.
De gebruiksoppervlakte van de woning is opgemeten conform de branchebrede meetinstructie (BBMI). De BBMI is gebaseerd op de NEN2580. De BBMI is bedoeld om een meer eenduidige manier van meten toe te passen voor het geven van een indicatie van de gebruiksoppervlakte. De meetinstructie sluit verschillen in meetuitkomsten niet volledig uit, door bijvoorbeeld interpretatieverschillen, afrondingen of beperkingen bij het uitvoeren van de meting.