Uitgelichte woning foto
Meer foto's

Bergse Rechter Rottekade 149D

Rotterdam Verkocht
Woning foto 0
Woning foto 1
Meer foto's
Woning foto 2
Woning foto
Meer foto's
Plattegronden
Bezichtiging aanvragen
Brochure downloaden
Locatie
Video

Omschrijving.

Fantastisch uitzicht over de Rotte vanuit dit lichte appartement met ruim balkon en garage

Aan de Bergse Rechter Rottekade woont u op een van de mooiste plekken van Rotterdam. Dit ruime 2-kamerappartement van ca. 82 m² ligt op de eerste verdieping van een verzorgd complex en biedt een fantastisch uitzicht over de Rotte en de Bergse Plas. Met een zonnig balkon op het zuidoosten, een lichte woonkamer, moderne voorzieningen en de mogelijkheid om een tweede slaapkamer te creëren, combineert dit appartement comfort met een unieke woonomgeving.

Locatie
Het appartement maakt deel uit van een verzorgd complex uit 2003 met lift, bergingen en een afgesloten entree. Vanuit hier wandelt u zo naar de gezellige horeca en speciaalzaken van het Kleiwegkwartier. Ook de tennisbanen van Lommerijk, jachthaven Aegir en het schilderachtige Prinsenmolenpad liggen op steenworp afstand. De bereikbaarheid is uitstekend dankzij het nabijgelegen openbaar vervoer en de uitvalswegen (A20).

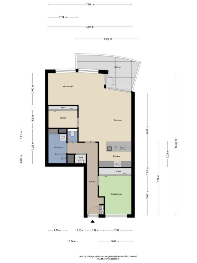
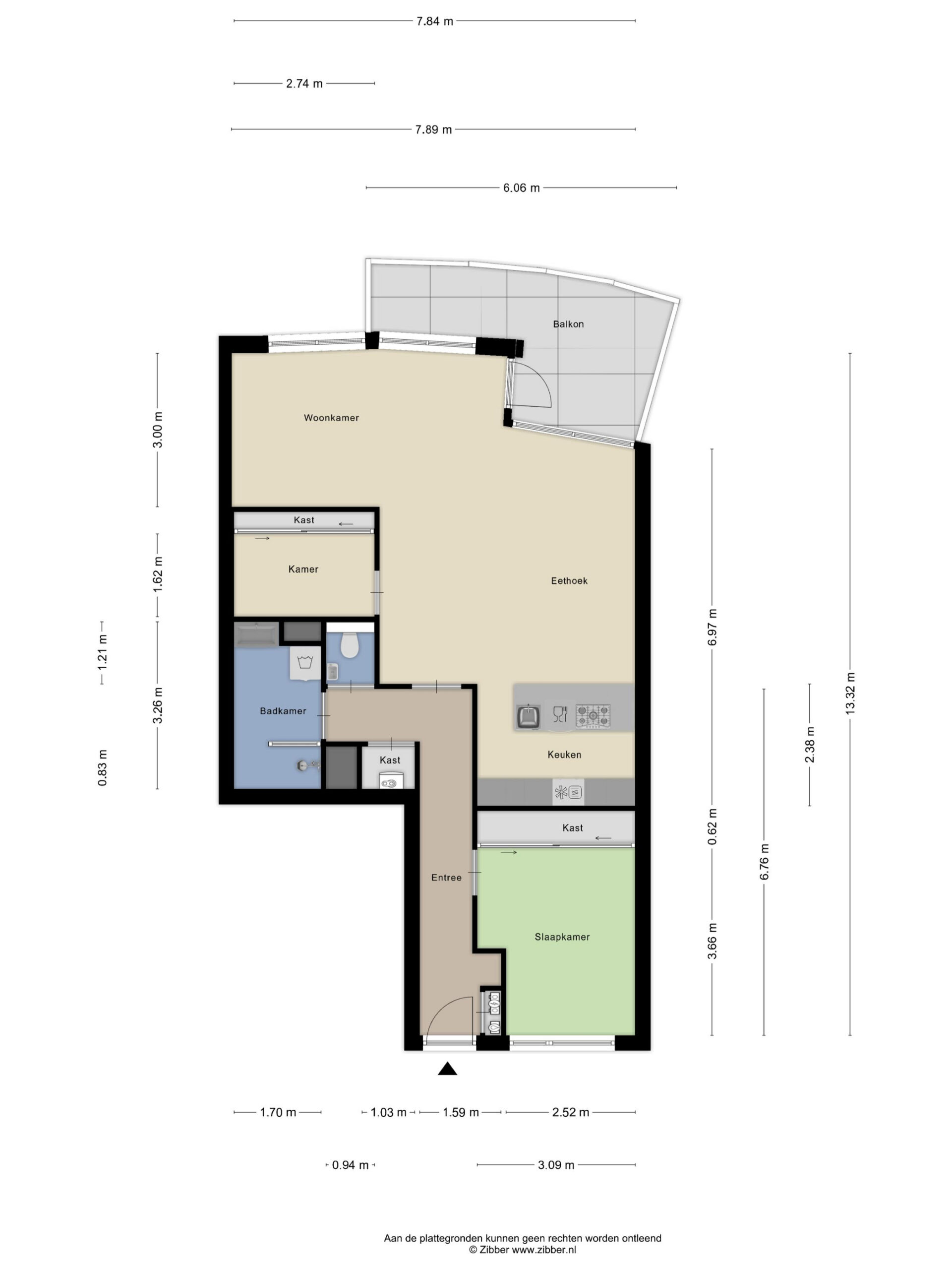
Indeling
Begane grond
Afgesloten entree met videofooninstallatie, bellentableau, ruime hal met toegang tot de lift, de bergingen en het achtergelegen parkeerterrein.

Eerste verdieping
Entree, hal met garderobe, meterkast en separaat toilet met fonteintje.
Royale woonkamer met een fantastisch panoramisch uitzicht over de Rotte. Dankzij de grote ramen is dit een heerlijk lichte ruimte, voorzien van een frisse tegelvloer.
Vanuit de woonkamer bereikt u het zonnige balkon (ca. 12 m²) op het zuidoosten, een ideale plek om te genieten van de ochtendzon en het uitzicht op het water.
Open keuken met diverse inbouwapparatuur.
Ruime slaapkamer met een grote kastenwand aan de entreezijde van het appartement.
Moderne badkamer, volledig betegeld en voorzien van inloopdouche, wastafel en de aansluiting voor wasmachine en droger.

Kortom
Een ruim en licht appartement op een unieke plek in Rotterdam, met uitzicht over het water, alle voorzieningen in de buurt en de stad binnen handbereik. Een kans die je niet wilt missen!

Bijzonderheden;
- bouwjaar 2003
- gelegen op eigen grond
- gebruiksoppervlakte wonen ca. 82 m² (conform BBMI/NEN2580)
- gebouw gebonden buitenruimte ca. 12 m² (conform BBMI/NEN2580)
- mogelijkheid voor indeling met 2 slaapkamers
- vloerverwarming in woonkamer, keuken en gang
- airconditioning unit in woonkamer (warm/koud)
- eigen berging in de onderbouw
- energielabel B
- verwarming en warm water door middel van cv-ketel (Remeha Avanta 28c 2021)
- actieve VvE, maandelijkse bijdrage € 207,-
- parkeergarage van ca. 20m2 wordt separaat aangeboden voor € 70.000,-

Oplevering in overleg.

Voor aanvullende informatie over deze woning kunt u de eigen website (adres+huisnummer) bezoeken.

J.J. van Oosten Makelaardij is de NVM-makelaar van de verkoper. Wij adviseren u uw eigen NVM-makelaar in te schakelen om uw belangen te behartigen bij de aankoop van dit object.

Aan deze aanbiedingstekst kunnen geen rechten worden ontleend.

De gebruiksoppervlakte van de woning is opgemeten conform de branchebrede meetinstructie (BBMI). De BBMI is gebaseerd op de NEN2580. De BBMI is bedoeld om een meer eenduidige manier van meten toe te passen voor het geven van een indicatie van de gebruiksoppervlakte. De meetinstructie sluit verschillen in meetuitkomsten niet volledig uit, door bijvoorbeeld interpretatieverschillen, afrondingen of beperkingen bij het uitvoeren van de meting.

Kenmerken.

Bouwjaar
2003
Aantal kamers
3
Aantal slaapkamers
2
Woonoppervlakte
82 m2
Inhoud
270 m3
Aantal badkamers
1
Energielabel
B
Isolatie
Dakisolatie, Muurisolatie, Vloerisolatie
Externe bergruimte
24 m2
Vraagprijs
€ 485.000,- k.k.
Aanvaarding
In overleg
Status
Verkocht
Soort object
Appartement
Bouwvorm
Bestaande bouw
Ligging
Aan water, Aan rustige weg, In woonwijk, Vrij uitzicht, Aan vaarwater
Aantal woonlagen
1
Daktype
Plat dak
Warm water
CV ketel
Verwarming
CV ketel, Vloerverwarming gedeeltelijk
Type ketel
Remeha Avanta 28C
Tuin
Geen tuin
Schuur / Berging
Box
Schuur / Berging voorzieningen
Voorzien van elektra
Parkeerfaciliteiten
Openbaar parkeren, Betaald parkeren, Op eigen terrein
Permanente bewoning
Ja
Onderhoud binnen
Goed tot uitstekend
Onderhoud buiten
Goed tot uitstekend
Huidig gebruik
Woonruimte
Huidge bestemming
Woonruimte
Voorzieningen
Mechanische ventilatie, TV kabel, Lift

Locatie.

Deel dit huis.

Gerelateerd aanbod.

Woning afbeelding
Bekijk huis
Nieuw

Straatweg 231C

Rotterdam
€ 495.000,- k.k.
Woning afbeelding
Bekijk huis

Nieuwe Kerkstraat 41A

Rotterdam
€ 535.000,- k.k.
Woning afbeelding
Bekijk huis

Nolensstraat 3B

Rotterdam
€ 525.000,- k.k.
Woning afbeelding
Bekijk huis

Straatweg 231B

Rotterdam
€ 525.000,- k.k.